Продається квартира Київ, Печерський, Лесі Українки бульв., 15, м. Печерська (№ 213-154-245)

Ціна: 99 000 $
Характеристики
| Ціна: | 99 000 $ |
|---|---|
| № об'єкта: | 213-154-245 |
| Кімнат: | 2 |
| Поверх: | 1 / 5 |
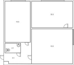
| Площа: | 36 / - / 10 м2 |
| Санвузол: | 1 сумісний |
| Балкон: | відсутній |
| Рік будинка: | 1967 |
Адреса: Київ, Печерський, Лесі Українки бульв., 15, м. Печерська
№ 213-154-245
🔹 Продається простора квартира
в затишному районі міста, за адресою: бул. Лесі Українки 15.
Знаходиться на 1 поверсі 5-поверхового будинку.
Загальна площа 36.6 м.кв.
🏡 Квартира світла, з гарним ремонтом, ідеально підходить як для комфортного проживання, так і для інвестування під орендний бізнес. Продумане планування, затишна атмосфера, якісні матеріали в оздобленні.
🛋 У квартирі є всі необхідні меблі та побутова техніка — можна заїжджати й жити без додаткових витрат.
🌍 Розвинена інфраструктура: поряд магазини, парки, школи, дитячі садки, медичні та освітні установи. Зручне транспортне сполучення, все необхідне — у пішій доступності.
📞 Зацікавила пропозиція? Телефонуйте — організуємо перегляд у зручний для вас час.
🏢 Працюючи з нами, ви отримуєте перевірене житло та повний супровід угоди.
💼 Комісія за послуги — 4% після підписання договору.





















