Продається квартира Васильківська вул., 23/16, Київ, Голосіївський, м. Васильківська (№ 213-169-396)
Ціна: 135 000 $

Васильківська вул., 23/16, Київ, Голосіївський, м. Васильківська
Характеристики
| Ціна: | 135 000 $ |
|---|---|
| № об'єкта: | 213-169-396 |
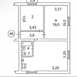
| Кімнат: | 3 см/рз |
| Поверх: | 4 / 5 |
| Площа: | 77 / 40 / 35 м2 |
| Санвузол: | 1 роздільний |
| Балкон: | балкон |
| Рік будинка: | 1960 |
Опис
🔹 № 213-169-396
Продається простора квартира
в затишному районі міста, за адресою:Васильківська вул. 23/16
Знаходиться на 4 поверсі 5 поверхового цегляного будинку.
Загальна площа (77) м.кв.
🏡 Квартира світла, з гарним ремонтом, ідеально підходить як для комфортного проживання, так і для інвестування під орендний бізнес. Продумане планування, затишна атмосфера, якісні матеріали в оздобленні.
🛋 У квартирі є всі необхідні меблі та побутова техніка — можна заїжджати й жити без додаткових витрат.
🌍 Розвинена інфраструктура: поряд магазини, парки, школи, дитячі садки, медичні та освітні установи. Зручне транспортне сполучення, все необхідне — у пішій доступності.
📞 Зацікавила пропозиція? Телефонуйте — організуємо перегляд у зручний для вас час.
🏢 Працюючи з нами, ви отримуєте перевірене житло та повний супровід угоди.
💼 Комісія за послуги — 4% після підписання договору.





















