Продається квартира Київ, Подільський, Балтійський пров., 5, м. Оболонь (№ 213-172-779)

Ціна: 57 000 $
Характеристики
| Ціна: | 57 000 $ |
|---|---|
| № об'єкта: | 213-172-779 |
| Кімнат: | 1 суміж |
| Поверх: | 11 / 25 ліфт |
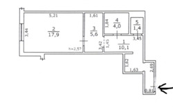
| Площа: | 39 / - / 8 м2 |
| Санвузол: | 1 сумісний |
| Рік будинка: | 2020 |
Адреса: Київ, Подільський, Балтійський пров., 5, м. Оболонь
№ 213-172-779
Продається простора квартира
в затишному районі міста, за адресою: пров.Балтійський, 5, ЖК Навігатор
Знаходиться на 11 поверсі, 25-поверхового будинку.
Загальна площа 39.6 м.кв. Будинок 2020 року.
Квартира світла, з гарним ремонтом, ідеально підходить як для комфортного проживання, так і для інвестування під орендний бізнес. Продумане планування, затишна атмосфера, якісні матеріали в оздобленні.
У квартирі є всі необхідні меблі та побутова техніка можна заїжджати й жити без додаткових витрат.
Розвинена інфраструктура: поряд магазини, парки, школи, дитячі садки, медичні та освітні установи. Зручне транспортне сполучення, все необхідне у пішій доступності.
Зацікавила пропозиція? Телефонуйте організуємо перегляд у зручний для вас час.
Працюючи з нами, ви отримуєте перевірене житло та повний супровід угоди.
Комісія за послуги 4% після підписання договору.










