Продається квартира Київ, Дніпровський, Євгена Сверстюка вул. (Марини Раскової), 54 (№ 213-175-109)

Ціна: 96 000 $
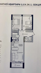
Характеристики
| Ціна: | 96 000 $ |
|---|---|
| № об'єкта: | 213-175-109 |
| Кімнат: | 1 |
| Поверх: | 6 / 25 ліфт |
| Площа: | 71 / - / 23 м2 |
| Санвузол: | 2 |
| Рік будинка: | 2026 |
Адреса: Київ, Дніпровський, Євгена Сверстюка вул. (Марини Раскової), 54
Продається чудова 2 кімнатна квартира з великою кухнею вітальнею біля метро Лівобережна за адресою: вул. Сверстюка 54, в ЖК Rusaniv Residence на Русанівці розташована на 6 поверсі 25 поверхового будинку.
Здача ЖК Русанівська Резіденція запланована на 4 квартал 2025 року.Висота стелі - 3.2 м. Це останній поверх з такою вистою стелі. Квартира ідеально підходить для родини з дітьми. П'ять секцій комплексу об'єднані спільною стилобатной частиною, де будуть розташовані об'єкти інфраструктури. Свій дитячий садок, зона для занять спортом, ігровий майданчик і місця для відпочинку.
Сучасне житло бізнес-класу, район з розвиненою інфраструктурою і вигідна локація в пішій доступності до метро. Разом з цим Ви отримаєте мальовничі краєвиди на упорядкований Русанівський канал і затишну набережну біля будинку.
Підтримка на всіх етапах угоди. Ми гарантуємо, що ви залишитеся задоволені співпрацею! Телефонуйте за вказанним номером, з радістю проконсультую по всім Вашим запитанням








