Продається квартира Київ, Голосіївський, Самійла Кішки вул. (Маршала Конєва), 5б, м. Іподром (№ 213-219-588)

Ціна: 125 000 $
Характеристики
| Ціна: | 125 000 $ |
|---|---|
| № об'єкта: | 213-219-588 |
| Кімнат: | 3 розд |
| Поверх: | 22 / 25 ліфт |
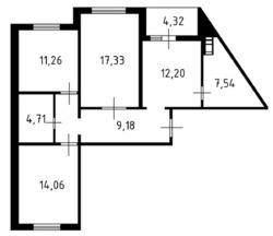
| Площа: | 82 / 42 / 12 м2 |
| Санвузол: | 2 роздільний |
| Балкон: | балкон |
| Рік будинка: | 2024 |
| Додатково: | новобудова |
Адреса: Київ, Голосіївський, Самійла Кішки вул. (Маршала Конєва), 5б, м. Іподром
№ 213-219-588
Продається простора 3 кімнатна квартира в затишному районі міста, за адресою:
Теремки-ІІ, ЖК Евріка, Самійла Кішки будинок 5 Б, яка знаходиться на 22 поверсі 25 поверхового будинку.
2024 рік побудови. Цегла. Висота стелі 3 м.
Загальна площа 82 м2 (житлова 42 м2, кухня 12 м2). Cанвузол: 2 і більше
Балкон з кухні засклений, два санвузли, є ванна та душ.
Зроблений якісний ремонт, в санвузлах підлога з підігрівом, бойлер, два кондиціонери, індивідуальні лічильники на отоплення.
Встановлені кухонні меблі, варочна поверхня, духова шафа, посудомийна машина, пральна машинка, велика шафа в коридорі.
Квартира світла, з гарним ремонтом, ідеально підходить для комфортного проживання.
Продумане планування, затишна атмосфера, якісні матеріали в оздобленні.
У квартирі є всі необхідні меблі та побутова техніка — можна заїжджати й жити без додаткових витрат.
Розвинена інфраструктура: поряд магазини, парки, школи, дитячі садки, медичні та освітні установи. Зручне транспортне сполучення, все необхідне — у пішій доступності.
До метро Іподром пішки 10 хвилин.
📞 Зацікавила пропозиція? Телефонуйте — організуємо перегляд у зручний для вас час.
Працюючи з нами, ви отримуєте перевірене житло та повний юридичний супровід угоди.
Комісія за послуги 4% після підписання договору купівлі-продажу.

















