Продається квартира Київ, Шевченківський, Жилянська вул., 118, м. Університет (№ 213-228-189)

Ціна: 92 000 $
Характеристики
| Ціна: | 92 000 $ |
|---|---|
| № об'єкта: | 213-228-189 |
| Кімнат: | 2 см/рз |
| Поверх: | 22 / 32 ліфт |
| Площа: | 53 / 12 / 28 м2 |
| Санвузол: | 1 сумісний |
| Балкон: | балкон |
| Рік будинка: | 2013 |
| Додатково: | новобудова |
Адреса: Київ, Шевченківський, Жилянська вул., 118, м. Університет
№ 213-228-189
Продається простора видова 2х кімнатна квартира в престижному районі міста, за адресою:
ЖК Елегант, вул Жилянська, 118, яка знаходиться на 22 поверсі 32 поверхового будинку.
2013 рік побудови. Монолітно-каркасний. Цегла. Висота стелі 3 м.
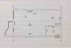
Загальна площа 53 м2 (житлова 12 м2, кухня 28 м2).
Планування:
кухня-вітальня, зона спальні, балкон засклений, санвузол суміщений (ванна).
• У квартирі виконано сучасний ремонт.
• Продається з меблями та побутовою технікою.
• Вбудована кухня, розкладний диван, двоспальне ліжко, одна шафа-купе + дві шафи, кухонний стіл, натяжна стеля в зоні вітальні.
• Побутова техніка: холодильник, телевізор, міні-посудомийна машина, пральна машина, духова шафа, варильна поверхня, витяжка, електричний камін, бойлер 50л, кондиціонер.
• Квартира розташована у середині будинку, дуже тепла.
• В наявності лічильники на опалення, воду, електрику.
• Будинок розташований у дворі, чудовий панорамний вид на Київ.
• У будинку гарне парадне, консьєрж,рецепшн, відеоспостереження, три ліфти - 1 вантажний та 2 пасажирські, закрита територія (брелок, шлагбаум).
У будинку є підземний паркінг.
• Поверх закритий на брелок, на поверсі відеоспостереження.
• У пішій доступності ботанічний сад ім.А.Фоміна
Квартира світла, з гарним ремонтом, ідеально підходить для комфортного проживання. Продумане планування, затишна атмосфера, якісні матеріали в оздобленні.
У квартирі є всі необхідні меблі та побутова техніка — можна заїжджати й жити без додаткових витрат.
Розвинена інфраструктура: поряд магазини, парки, школи, дитячі садки, медичні та освітні установи. Зручне транспортне сполучення, все необхідне — у пішій доступності.
До метро Університет чи Вокзальна пішки 10 хвилин.
📞 Зацікавила пропозиція? Телефонуйте — організуємо перегляд у зручний для вас час.
Працюючи з нами, ви отримуєте перевірене житло та повний юридичний супровід угоди.
Комісія за послуги 4% після підписання договору купівлі-продажу.
















