Продається квартира Драгоманова вул., 6, Київ, Дарницький  (№ 213-258-553)

Ціна: 82 000 $

Продається квартира Драгоманова вул., 6, Київ, Дарницький фото 1

Драгоманова вул., 6, Київ, Дарницький

Характеристики

Ціна: 82 000 $
№ об'єкта: 213-258-553
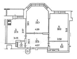
Кімнат: 2
Поверх: 13 / 23 ліфт
Площа: 72 / - / 14 м2
Рік будинка:
НЕ РЕКЛАМУВАТИ

Опис

213-258-553
🔹 Продається простора квартира
в затишному районі міста, за адресою вул.Драгоманова вул.6
Знаходиться на 13 поверсі 23 поверхового будинку.
Загальна площа 72 м.кв.

🏡 Квартира світла, з гарним ремонтом, ідеально підходить як для комфортного проживання, так і для інвестування під орендний бізнес. Продумане планування, затишна атмосфера, якісні матеріали в оздобленні.

🛋 У квартирі є всі необхідні меблі та побутова техніка — можна заїжджати й жити без додаткових витрат.

🌍 Розвинена інфраструктура: поряд магазини, парки, школи, дитячі садки, медичні та освітні установи. Зручне транспортне сполучення, все необхідне — у пішій доступності.

📞 Зацікавила пропозиція? Телефонуйте — організуємо перегляд у зручний для вас час.

🏢 Працюючи з нами, ви отримуєте перевірене житло та повний супровід угоди.
💼 Комісія за послуги — 4% після підписання договору.

Об'єкт на карті

Замовити зворотній дзвінок