Продається квартира Ревуцького вул., 19/1, Київ, Дарницький (№ 213-296-733)
Ціна: 63 900 $

Ревуцького вул., 19/1, Київ, Дарницький
Характеристики
| Ціна: | 63 900 $ |
|---|---|
| № об'єкта: | 213-296-733 |
| Кімнат: | 2 розд |
| Поверх: | 1 / 16 ліфт |
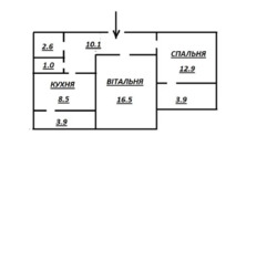
| Площа: | 56 / - / 8 м2 |
| Санвузол: | 2 роздільний |
| Балкон: | балкон |
| Рік будинка: |
Опис
Продаж квартири Харківський , Ревуцького 19/1
Продаж просторої та затишної квартири з вікнами у тихій двір біля озера неподалік метро. Загальна площа 56 кв.м. На високому 1 поверсі 16-поверхівки. Будинок 1988 року, серія Т4, стіни – керамзитобетон. Висота стелі 2.6 м. Кімнати та сан.вузол роздільні. Усі вікна виходять на схід. При продажу залишається все, що можна побачити на фото: двоспальне ліжко, два розкладних дивани, шафи-купе, журнальний столик, вбудована кухня, електроплита з духовкою, холодильник, пральна машина, мікрохвильовка та інше. Підлога у коридорі, кухні, ванні та туалеті – плитка, у житлових кімнатах – паркетна дошка. Дві лоджії засклені, в одній з них є льох (погреб). Тамбур на декілька квартир, кодове парадне, працює консьєрж. Чудове розташування на Харківському масиві біля озера «Сонячне» – поруч Новус, АТБ та Сільпо, кавярні, два спортклуби, пивний магазин, відділення Укрпошти, Нової пошти, школи та дитячі садочки. Біля будинку є автостоянка. До ст.м.«Харківська» - декілька зупинок на громадському транспорті, 5 хв. на авто чи 20 хвилин пішки.
Вид обєкта: Вторинний ринок;
Тип будинку: Житловий фонд 80-90-і;
Рік введення в експлуатацію: 1 988;
Тип стін: Панельний;
Клас житла: Економ;
Планування: Роздільна;
Cанвузол: Роздільний;
Опалення: Централізоване;
Ремонт: Житловий стан;
Меблювання: Так;
Побутова техніка: Холодильник, Мікрохвильова піч, Духова шафа, Плита, Пральна машина;
Комфорт: Балкон, лоджія, Меблі на кухні;
🏢 Працюючи з нами, ви отримуєте перевірене житло та повний супровід угоди.
💼 Комісія за послуги — 4% після підписання договору.

























