Продається квартира Олександра Архипенка вул. (Мате Залки), 10А, Київ, Оболонський, Оболонь, м. Оболонь (№ 213-302-838)
Ціна: 80 000 $

Олександра Архипенка вул. (Мате Залки), 10А, Київ, Оболонський, Оболонь, м. Оболонь
Характеристики
| Ціна: | 80 000 $ |
|---|---|
| № об'єкта: | 213-302-838 |
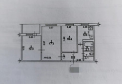
| Кімнат: | 3 розд |
| Поверх: | 8 / 9 ліфт |
| Площа: | 60 / 40 / 7 м2 |
| Санвузол: | 1 роздільний |
| Балкон: | лоджія |
| Рік будинка: | 1980 |
Опис
№ 213-302-838
Продаж 3 кімнатної квартири на Архіпенка 10а, 8/9п, 60/40/7, одностороня,не торцева,сонячна, тепла,
По всій квартирі натяжні стелі, встановленні склопакети,замінені труби ,сантехніка (до початку війни був розпочатий ремонт санвузлів) зроблена ніша для пральної машини,встановлений бойлер.
Зроблений ремонт в кімнатах, кондиціонер,двофазний лічильник електроенергії,балкон заскланий,броньовані двері,домофон.
Меблі та техніка залишаєтся.
Квартира знаходиться відалена від центральної дороги,в тихому зеленому місці,поряд з озером,парк Наталка,метро Оболонь,торгові центри, школ,садочків все поряд,гарна транспортна розвязка,чистий відремонтований підїзд,код замок,охайний зелений двір.
Побутова техніка: Холодильник, Мікрохвильова піч, Духова шафа, Плита, Пральна машина;
Мультимедіа: Кабельне, цифрове ТБ, Телевізор, Wi-Fi;
Комфорт: Кондиціонер, Балкон, лоджія, Ванна, Меблі на кухні;
Комунікації: Центральна каналізація, Електрика, Вивіз відходів, Газ, Центральний водопровід;
Інфраструктура (до 500 метрів): Ресторан, кафе, Школа, Ринок, Метро, Парк, зелена зона, Дитячий майданчик, Відділення пошти, Бювет, Магазин, кіоск, Супермаркет, ТРЦ, Зупинка транспорту, Відділення банку, банкомат, Кінотеатр, театр, Аптека, Лікарня, поліклініка, Дитячий садок;
Розвинена інфраструктура: поряд магазини, парки, школи, дитячі садки, медичні та освітні установи. Зручне транспортне сполучення, все необхідне — у пішій доступності.
До метро Оболонь пішки 10 хвилин.
📞 Зацікавила пропозиція? Телефонуйте — організуємо перегляд у зручний для вас час.
Працюючи з нами, ви отримуєте перевірене житло та повний юридичний супровід угоди.
Комісія за послуги 5% після підписання договору купівлі-продажу.


























