Голосіївський/Теремки/ЖК Абрикосовий, вул.Жулянська (№ 213-306-904)
Ціна: 63 000 $

Жулянська вул., Київ, Голосіївський, м. Теремки
Характеристики
| Ціна: | 63 000 $ |
|---|---|
| № об'єкта: | 213-306-904 |
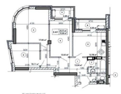
| Кімнат: | 3 розд |
| Поверх: | 5 / 26 ліфт |
| Площа: | 75 / 45 / 13 м2 |
| Санвузол: | 2 роздільний |
| Балкон: | балкон |
| Рік будинка: | |
| Додатково: | новобудова |
Опис
Пропонується на продаж 3-кімнатна квартира в ЖК Абрикосовий, вул. Жулянська неподалік від метро Теремки.
Характеристики квартири:
- розташована на комфортному 5-му поверсі 26-поверхового будинку
- має загальну площу 75 м2, житлову 45 м2, кухню 13 м2
- стан квартири після будівельників (під чистове оздоблення)
В квартирі виконані наступні роботи:
• ремонт після забудовника Київміськбуд
• встановлені радіатори
• лічильники на воду, електроенергію та опалення
ЖК Абрикосовий - сучасний житловий комплекс, закрита територія, цілодобова охорона, відеонагляд, доглянута зелена територія, зони відпочинку, дитячі майданчики, підземний паркінг і гостьова парковка.
Вид обєкта: Новобудова;
Розвинена інфраструктура: поряд магазини, парки, школи, дитячі садки, медичні та освітні установи. Зручне транспортне сполучення, все необхідне — у пішій доступності.
До метро Теремки 10 хвилин транспортом.
Переуступка 5 % та 1% в пенсійний фонд загалом 96987 грн , сплачує покупець, ця сума не входить в заявлену ціну квартири.Поки будинок не ввели в експлуатацію існує можливість придбати за переуступкою, це набагато дешеше, бо з'являються не малі податкові зобов'язання в перші 3 роки володіння нерухомістю. Переуступка є безпечною та підписується в Головному офісі Київміськбуду. Квартира в монолітно-каркасному будинку . Поруч з ТЦ Епіцентр , ТЦ Республіка, ТЦ Метро, але разом з цим місце тихе. Поруч достатньо садочків та шкіл. Вікна квартири виходять на елітний приватний сектор Гатного. В квартирі 2 санвузли, лічильники, радіатори, стяжка підлоги, броньовані вхідні двері, металопластикові панорамні вікна. Балкон та лоджія засклені. Своя закрита територія ЖК, поряд парк
📞 Зацікавила пропозиція? Телефонуйте — організуємо перегляд у зручний для вас час.
Працюючи з нами, ви отримуєте перевірене житло та повний юридичний супровід угоди.
Комісія за послуги 4% після підписання договору купівлі-продажу.












